微信公众号
全国客服热线

0731-58567000

服务团队
张汐

级别:高级设计师
经验:11年 作品:351
擅长风格:别墅、普通住宅

免费预约该设计师

提交您的信息领取定制方案

  • *免费电话申请:13637320322

    申请户型规划可
    免费上门量房出平面方案

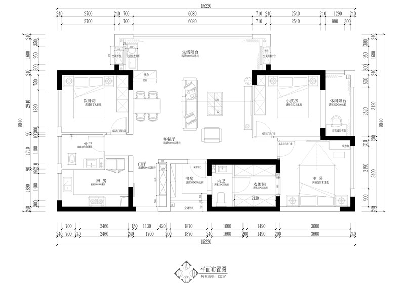
十里风荷122平现代风格设计鉴赏

文章出处:知音装饰 人气:2262 发表时间:2021-04-01
装修模式 全包 人气 2262
装修风格 现代简约 区域 易俗河
装修户型 三居室 装修面积 100-140㎡
设计理念

本案是十里风荷122平的一套现代风格设计效果,由知音家装设计师张汐设计,她擅长新中式、现代简约、轻奢北欧、美式等装修风

设计理念:
现代简约风格是现在年轻人最喜欢的选择,没有太多造型,摒弃了过多的约束,注重功能分区,厨房稍做改造留出放冰箱的空间,内卫使用较少,则划分一般给衣帽间,增加储物,使空间利用率更高。客厅与阳台相通,让空间更加开放让户外美景更好的得到融入。让空间氛围更加多元化,摆脱了沉闷的装修格局。

如您想了解更多家装案例、装修报价等信息欢迎在线联系!!!

方案说明

十里风荷122平现代风格全景效果图

我要分享
0

该设计师其它作品