黄金时代114平现代奶油风格鉴赏
五居室|140-200㎡|轻奢风格
| 装修模式 | 全包 | 人气 | 3095 |
| 装修风格 | 轻奢风格 | 区域 | 雨湖区 |
| 装修户型 | 五居室 | 装修面积 | 140-200㎡ |
本案是天元玺园一套154平现代风格,由家装设计师曾昕设计
设计理念:
整个房子以白灰和咖色为主色调,注重高品质与设计感,将优雅时尚的质感结合着现代材质及装饰技巧,从而巧妙的呈现在居室中,展示着精致高端的生活态度。它从来都不是单单靠一种细节或一种元素,它往往是多个细节元素组合而来,优雅舒适简约而有气质。
如您对本案例感兴趣,想咨询更多装修设计、装修报价等详细信息,欢迎在线报名咨询!!!

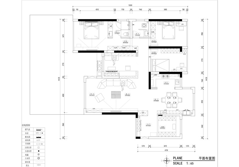
平面布局

餐厅

厨房

电视背景墙

客厅沙发

五居室|140-200㎡|轻奢风格
五居室|140-200㎡|轻奢风格
五居室|140-200㎡|轻奢风格
五居室|140-200㎡|轻奢风格
五居室|140-200㎡|轻奢风格
五居室|140-200㎡|轻奢风格
五居室|140-200㎡|轻奢风格
五居室|140-200㎡|轻奢风格
五居室|140-200㎡|轻奢风格